archiplex
news
works
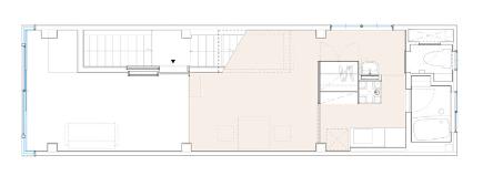
planorg
profile
contact
緑が丘の家PLAN
KINEATTIC
Kitchen M
旬膳小野
ミュゼ・ド・ダンス
小野田商店
豊田の家
sectionorg
K-ONE プロジェクト
SECTION
sRIMG0009g
sRIMG0007gsRIMG0040g
item2
Copyright archiplex org. All rights reserved.